Spielturm mit Rutsche, Kletteraufstieg und Schaukel WOODEN WD1438 von Vinci Play
Die WOODEN-Serie ist eine endlose Inspirationsquelle für jüngere und ältere Kinder, wie man Spaß haben kann. Verschiedene pädagogische und sensorische Tafeln, gepaart mit beweglichen Elementen, werden den Kindern viel Freude bereiten und großes Interesse wecken. Die umweltfreundlichen Holzgeräte aus der WOODEN-Serie regen die umfassende körperliche Entwicklung des Kindes an und ermöglichen auch das gemeinsame Spielen einer großen Kindergruppe. Dadurch lernt das Kind, Beziehungen zu seinen Mitmenschen aufzubauen und als Teil eines Teams zu arbeiten.
- Hochwertige Materialien: Hochwertiges druckimprägniertes Kiefernholz/HDPE-Platten/rutschfeste und wasserfeste Multifplexplatte/Metallelemente aus Edelstahl 304/Verankerung -55cm
- Zertifikate zuverlässiger Institutionen – TÜV Rheinland, ISO 9001
- Professionelle Produktion, Verpackung und Lieferung
- Behinderung erleichtern durch einfachen Zugang und Integration
- Intellektuelle Entwicklung durch Denken und Spielen
- Körperliche Entwicklung: Rutschen, Klettern und Schaukeln
- Anzahl Türme: 1
- Anzahl Rutschen: 1
- Anzahl Dächer: 1
- Anzahl interaktiver Elemente: 3
- Anzahl Aktivitäten-Elemente: 2
Technische Daten Spielturm mit Rutsche, Kletteraufstieg und Schaukel WOODEN WD1438 von Vinci Play
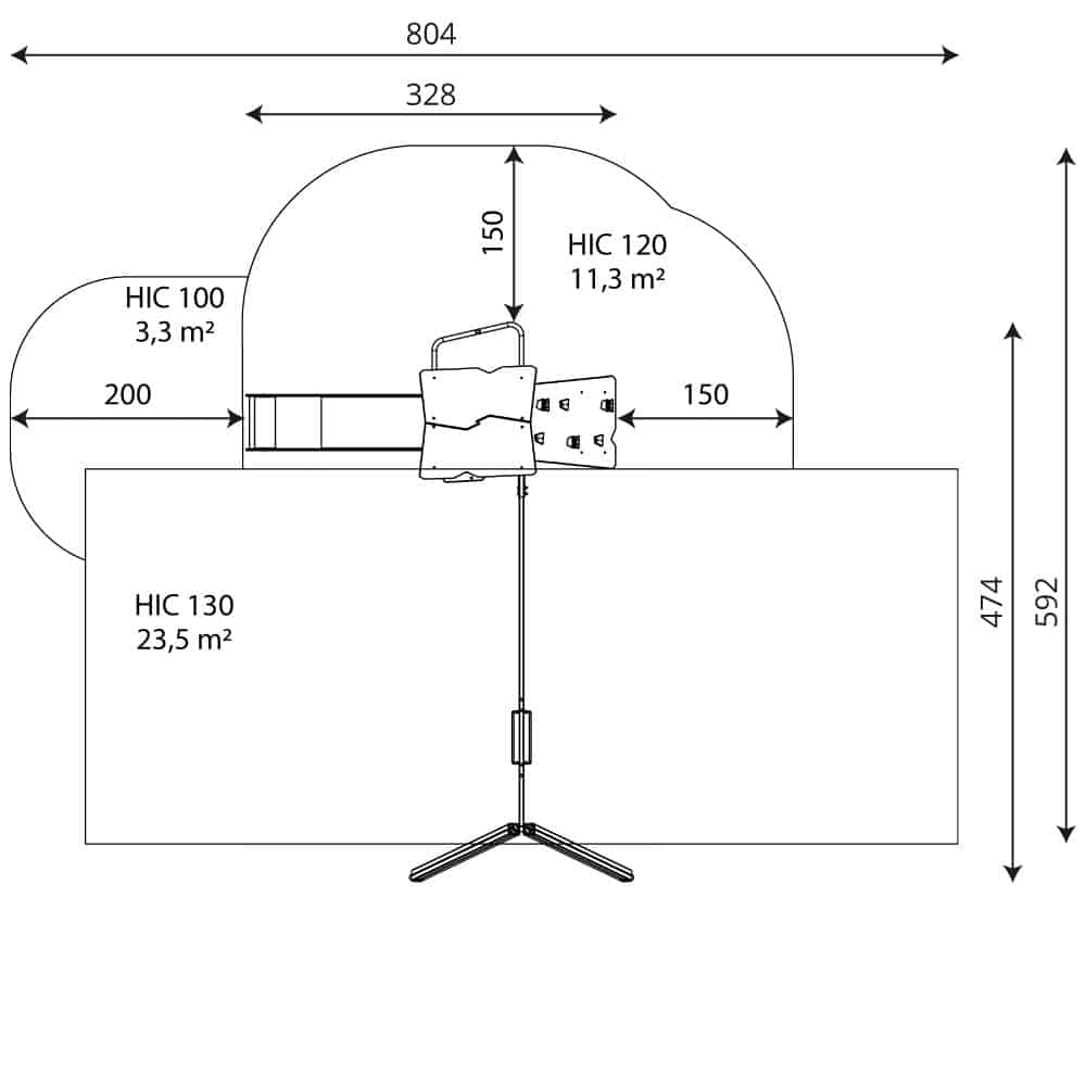
- Länge: 328 cm
- Breite: 474 cm
- Gesamthöhe: 307 cm
- Altersgruppe: 3-14 Jahre
- Anzahl der Nutzer: 12 Kinder
- Sicherheitszone: 38,1 m2
- Freie Fallhöhe: 130 cm
- Plattformhöhe: 120 cm
- Gemäß Norm EN1176-1:2017
- Gewicht des schwersten Teils: 24 kg
- Abmessungen des größten Teils: 292x9x9 cm
- Verfügbarkeit von Ersatzteilen: ja
- Installationszeit: 4,5 Std
Materialangabe Spielturm mit Rutsche, Kletteraufstieg und Schaukel WOODEN WD1438 von Vinci Play
- Konstruktion aus hochwertigstem laminiertem, imprägniertem und doppelt beschichtetem Kiefernholz 90 x 90 mm ohne Knoten, von oben mit Polypropylenstopfen gesichert,
- Metallanker aus feuerverzinktem Stahl, die das Holz vor direktem Kontakt mit dem Boden schützen, um Fäulnis zu verhindern und die Lebensdauer des Produkts zu verlängern,
- Feuerverzinkte und pulverbeschichtete oder pulververzinkte und pulverbeschichtete oder Edelstahlbauteile,
- Plattformen und Kletterwände aus strapazierfähigem, rutschfestem und wasserdichtem Sperrholz oder HPL-Platte,
- Konstruktion für Plattformen aus feuerverzinktem und pulverbeschichtetem Stahl; Dächer, Seitenwände aus strapazierfähigem HDPE- oder HPL-Blech, witterungsbeständig,
- Rutschen aus Edelstahl mit strapazierfähigen Seitenteilen aus HDPE oder HPL, Feuerwehrstange aus Edelstahl,
- Bewegliche Elemente aus strapazierfähigem HDPE- oder HPL-Blech, witterungsbeständig,
- Klettersteine aus strapazierfähiger HDPE-Platte, witterungsbeständig, Stahlseile in Polypropylengeflecht, verbunden mit langlebigen Kunststoffelementen, Edelstahl oder Aluminium,
- Attestierte, sichere Sitze,
- Kalibrierte Edelstahlketten, die das Einklemmen der Finger verhindern, Schwenkbeschläge aus Edelstahl,
- Stangen aus Edelstahl,
- Mit Kunststoffkappen und/oder Edelstahlschrauben abgedeckte Schrauben, Tresor-Endkappen aus Polypropylen,
Weitere Informationen
- behindertengerechte Ausrüstung; bestimmt für öffentliche Spielplätze;
- das Gerät hat ein von einer akkreditierten Stelle ausgestelltes Zertifikat oder eine Konformitätserklärung;
- verfügbare Sitzarten in der Schaukel: R1-flach, R2-Korb, R3-flach Gurt, R5-flach mit Barriere;
- keine scharfen Kanten oder Ritzen, an denen Kopf, Finger oder andere Körperteile verletzt werden könnten;
- Verankerung auf ebener Fläche, 80/70/60 cm tief; Rutsche sollte nicht nach Süden eingebaut werden;
- Rendering dient nur als Referenz, das tatsächliche Aussehen des Geräts und seine Farbe können variieren;
Garantien
- 30 Jahre Garantie – Strukturfestigkeit von Stahl- und Edelstahlkomponenten
- 15 Jahre Garantie – Strukturelles Versagen von Stahl und Edelstahl, für dynamische Ausrüstung
- 10 Jahre Garantie – Strukturelles Versagen von Komponenten aus hochdichtem Polyethylen und Hochdrucklaminaten
- 5 Jahre Garantie – Korrosion von Edelstahl und feuerverzinkten und pulverbeschichteten Komponenten; gegen Borkenkäfer und Fäulnis bei Holzbauteilen
- Detaillierte Informationen in der Garantiekarte

Rezensionen
Es gibt noch keine Rezensionen.