Kletterwand mit Griffen und Seil – RECYCLED RC0499 von Vinci Play
Immer im Blick: eine „gesündere“ Erde. Dafür haben wir die RECYCLED-Serie erschaffen. Dank neuer Technologien können wir viele Strukturelemente aus Textilabfällen und Folien herstellen. Die HDPE-Platten der Dächer, Seitenwände und spielerischen Elemente werden aus Fischernetzen- und seilen gefertigt.
- Professionelle Produkte, Verpackung und Lieferung
- eZertifikate zuverlässiger Einrichtungen
Materialien in hoher Qualität - Entsprechend der Norm EN 1176-1:2017
- Professionelle Produktion, Verpackung und Lieferung
- Körperliche Entwicklung: Klettern
- Anzahl Aktivitäten-Elemente: 1
Technische Daten Kletterwand mit Griffen und Seil – RECYCLED RC0499 von Vinci Play
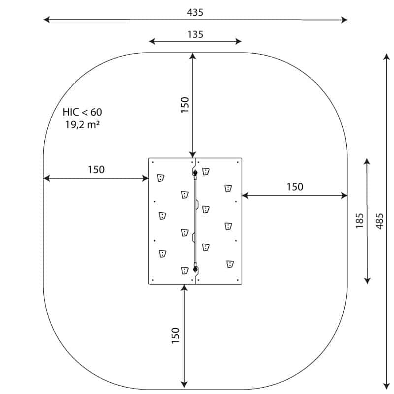
- Länge: 135 cm
- Breite: 185 cm
- Gesamthöhe: 45 cm
- Altersgruppe: 3-14 Jahre
- Anzahl der Nutzer: 4 Kinder
- Sicherheitszone: 19,2 m2
- Freie Fallhöhe: < 60 cm
- Gewicht des schwersten Teils: 29 kg
- Abmessungen des größten Teils: 180x71x4 cm
- Gemäß Norm EN1176-1:2017
- Verfügbarkeit von Ersatzteilen: ja
- Installationszeit: 2 Std.
Materialangabe Kletterwand mit Griffen und Seil – RECYCLED RC0499 von Vinci Play
- Die Struktur besteht aus langlebigem, feuchtigkeitsbeständigem und temperaturbeständigem Material
- recycelter Verbundwerkstoff,
- Kletterwände aus strapazierfähigem, rutschfestem und wasserfestem Sperrholz oder HPL-Platte,
- Klettersteine aus grünen HDPE-Platten aus 100 % Recyclingmaterial, z.B.
- Meeresabfälle wie Fischernetze und Seile, witterungsbeständig,
- Stahlseile aus Polypropylengeflecht, verbunden mit langlebigen Kunststoffelementen,
- Edelstahl oder Aluminium,
- Edelstahlschrauben und/oder mit Kunststoffkappen abgedeckte Schrauben,
Weitere Informationen
- Für öffentliche Spielplätze geeignet
- die Geräte verfügen über ein von einer akkreditierten Stelle ausgestelltes Zertifikat oder eine Konformitätserklärung;
- keine scharfen Kanten oder Öffnungen, die die Gefahr des Einklemmens des Kopfes, der Finger oder anderer Körperteile mit sich bringen könnten;
- Verankerung auf ebener Fläche, 80/70/60 cm tief;
- Die Rutsche sollte nicht in Richtung Süden ausgerichtet sein;
- Die Darstellung dient nur als Referenz, das tatsächliche Aussehen des Geräts und seine Farbe können abweichen;
Garantien
- 30 Jahre Garantie – Strukturfestigkeit von Stahl- und Edelstahlkomponenten
- 15 Jahre Garantie – Strukturelles Versagen von Stahl und Edelstahl, für dynamische Ausrüstung
- 10 Jahre Garantie – Strukturelles Versagen von Komponenten aus hochdichtem Polyethylen und Hochdrucklaminaten
- 5 Jahre Garantie – Korrosion von Edelstahl und feuerverzinkten und pulverbeschichteten Komponenten; gegen Borkenkäfer und Fäulnis bei Holzbauteilen
- Detaillierte Informationen in der Garantiekarte

Rezensionen
Es gibt noch keine Rezensionen.