hiiwi Lift für timkid Wandwickeltische
Mit dem CE-geprüften, elektrisch höhenverstellbaren Lift hiiwi können Wandwickeltische von timkid bequem in der Höhe verstellt werden. Das ermöglicht ein rückenschonendes Windelwechseln von Babys und Kleinkindern.
Folgende Wandwickeltische können mit hiiwi benutzt werden: kawapro weiß, kawaform weiß 20 cm, kawaform buche 20 cm, sowie alle weiteren neuen Modelle.
Rückenschonend Wickeln durch verstellbare Arbeitshöhe
In der niedrigsten Position kann das Kleinkind aus eigener Kraft auf den Wickeltisch krabbeln. Mit der mitgelieferten Fernbedienung wird der Lift elektrisch auf die angenehmste Arbeitshöhe gebracht. Durch ein Spiralkabel bietet die Fernbedienung Bewegungsfreiheit. Diese kann außen am Lift oder innen im Wickeltisch befestigt werden. Nach dem Wickeln wird der Lift wieder in eine Position gebracht, die dem Kind ermöglicht einfach hinunter zu krabbeln. Durch die individuelle Höhenverstellung können Sie den Wickeltisch passend auf Ihre Körpergröße einstellen. Besonders die Rücken von Erzieher*innen werden dadurch entlastet.
Platzsparende Wandbefestigung mit einfacher Montage
Der Lift hiiwi benötigt nur eine freie, stabile Wand zur Befestigung. Durch die Tiefe von 11 cm benötigt die Hubgruppe nur wenig Raumtiefe. Die Anlieferung erfolgt bereits vormontiert. Die Hubeinheit muss lediglich mit vier Dübeln und passenden Schrauben an der Wand befestigt werden. Danach wird die Haube auf die Hubeinheit geschraubt. Abschließend wird wie gewohnt der Wickeltisch eingehängt und mit zwei Schrauben gesichert.
Der Versand erfolgt per Spedition. Für weitere Fragen können Sie uns gern kontaktieren.
Features hiiwi Lift für timkid Wandwickeltische
- kann mit timkid Wickeltischen kombiniert werden
- einfache Bedienung
- großer Verstellbereich von 72cm
- wird vormontiert geliefert
- Anlieferung per Spedition
- 100% Made in Germany
Technische Daten hiiwi Lift für timkid Wandwickeltische
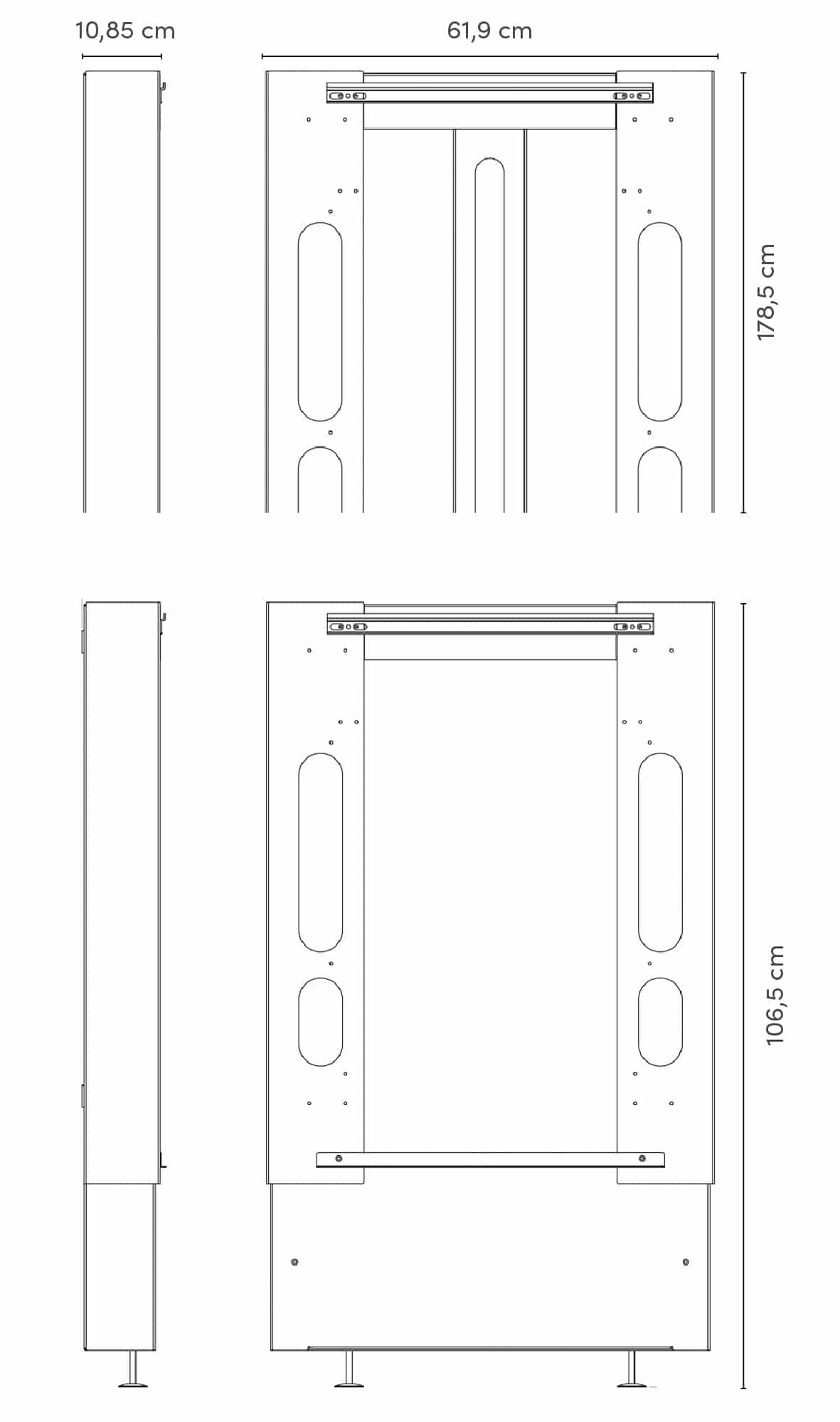
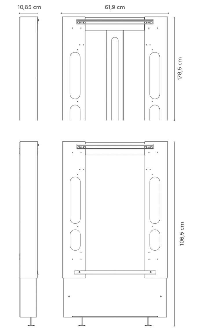
- Breite: 61,9 cm
- Tiefe: 10,85 cm
- Höhe eingefahren: 106,5 cm
- Höhe ausgefahren: 178,5 cm
- Verstellbereich: 72 cm
- Material: bepulverter Stahl
- Farbe: weiß
- Stromanschluss: 230 V
- Produktpflege: desinfektionsmittelbeständig
- Belastbarkeit: 100 kg
- Bruttogewicht: 38 kg
- Einsatzort: Krankenhaus, Kita, öffentliche Einrichtung
- Lieferumfang: Lift, kabelgebundene Fernbedienung, 3-teilige Abdeckhaube, Wandschiene

Rezensionen
Es gibt noch keine Rezensionen.